Beschreibung
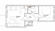
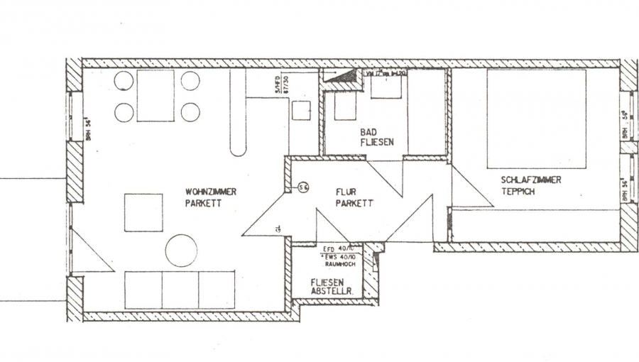
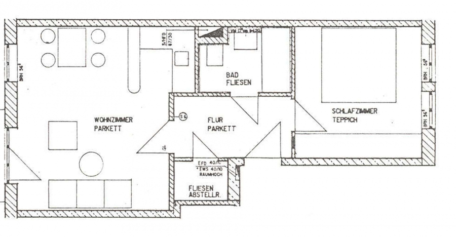
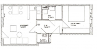
Die attraktive helle 2-Zimmer-Wohnung hat einen großen Balkon. Die Küche ist im Wohnzimmer integriert. Die Wohnung befindet sich in einer gepflegten, modernen Wohnanlage in der Nähe des Naherholungsgebietes Siebentischwald und ist perfekt für Singles geeignet.
Ausstattung
Der große Süd-West-Balkon ist vom Wohnzimmer aus Richtung Westen begehbar. Im Wohnzimmer befindet sich eine Küchenzeile, welche vom Vormieter abgelöst werden kann (Preis nach VB). Das Wohnzimmer inkl. Küche und der Flur sind mit Echtholzparkett ausgestattet. Das helle Schlafzimmer ist mit Venyl-Designboden versehen. Das Bad ist mit einer Badewanne und weißen Fliesen ausgestattet. Zur Wohnung gehört auch ein Kellerabteil. Im Treppenhaus befindet sich ein Aufzug, welcher auch das Kellergeschoss bedient. Ebenso steht den Mietern eine gemeinschaftliche Waschmaschine und ein Trockner in der Waschküche zur Verfügung. Ein eigener Waschmaschinen-Stellplatz steht im Appartement nicht zur Verfügung.
Sonstiges
Bitte kontaktieren Sie uns über Immobilienscout unter Angabe Ihrer Telefonnummer. Wir freuen uns auf Ihre Bewerbung.
Für eine mögliche Terminvereinbarung für eine Besichtigung melden wir uns telefonisch bei ihnen.